<p>כל אחד: הממשלה הפורטוגזית מעודדת רכישת נכסים בפורטוגל. גם למי שלא מחזיק בדרכון אירופאי.</p>
<p>כי יש ביכולתנו לחסוך לכם סכומי כסף ניכרים ברכישת הנכס. כי יש לנו את הידע וההבנה של תחום הנדל"ן בפורטוגל. כי יש לנו את הצוות המקצועי ללוות אתכם בכל עסקת נדלן בפורטוגל.</p>
<p>לא. הסיוע והליווי שלנו ניתנים גם כאשר אתם מאתרים נכס בכל אתר אחר ואצל כל מתווך אחר בפורטוגל.</p>
<p>כי מחירי הנדלן בפורטוגל זולים באופן משמעותי ביחס לכל מדינה במערב אירופה. כי נקודת הזמן הזו היא הזדמנות להשקעה אשר יכולה להניב תשואה גבוה ביותר בשנים הקרובות. כי מחירי הנדלן בפורטוגל עולים ובהתמדה בשנים האחרונות. כי המחייה בפורטוגל זולה, כי הפורטוגזים נעימים ומסבירי פנים, כי פורטוגל היא המקום הטוב ביותר לחיות בו במערב אירופה.</p>
295.000 €
Rapoula, Vale De Agua, Fundão Municipality, Castelo Branco District, Central Portugal
בית אבן גרניט יפיפה, משופץ ומיוחד במינו, סטודיו כיחידה נפרדת ועצמאית, מחסן גדול במיוחד ושטח אדמה שופע.
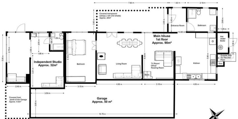
שטח כולל
1.65 הקטר (הקטר אחד מגודר + 0.65 הקטר עם עצי אורן, צמחייה ועצי פרי צעירים).
גישה נוחה בדרך עפר, שמתוחזקת היטב על ידי המועצה ומובילה ישירות לשער הראשי.
שטח בנוי:
בית: 150 מ"ר (90 מ"ר בקומת הקרקע + 60 מ"ר בקומה שנייה). סטודיו (יחידה עצמאית): 32 מ“ר. מוסך: 50 מ“ר.
סך הכול תחת קורת גג: כ-232 מ“ר.
מאפיינים עיקריים:
מיקום שקט ושלו עם שפע עצי פרי, אדמה פורייה במיוחד וסטודיו ייחודי לצד הבית.
הבית והאדמה מציעים פרטיות ויחד עם זאת אינם מבודדים.
הבית ממוקם בלב אזור המציע שילוב הרמוני של אותנטיות כפרית פורטוגלית עם נוחות מודרנית.
האדמה שופעת לאורך כל השנה, הודות לקרקע עשירה במינרלים ולניהול מים מושכל.
מושלם עבור מי שחולמים על חיים של "חזרה לאדמה", חקלאות בת־קיימא, או יצירה.
השטח גדול דיו ליצירת אזורים מגוונים של מיקרו-אקלים, ויחד עם זאת עדיין בר ניהול, גם, למי שמעוניין פשוט ליהנות מהחיים בטבע.
הליבה המגודרת, בגודל הקטר, מחולקת לאזורים מובחנים:
כרם: גפנים מניבות, מתאימות בעיקר ליין, משולבות עם עצי תפוח, אפרסמון, אגס, אפרסק ורימון. גן ירוק־עד: סביב הבית מרחב ירוק עשיר בצמחי נוי, עשבי תיבול, שפע פקעות וכן גינה לגידול ירקות .מדרון מתון ופורֶה: עצי פרי רבים — זיתים, שזיפים,אגוז מלך, פיסטוקים, אגסים, דובדבנים, תות עץ, שקדים, ערמונים, תפוזים, קלמנטינה, אשכולית, מדרוניו (עץ תות), תאנים, חבושים, לימון ורימונים. כמו כן, עצי אלון, אלון שעם, פולוניה, מגנוליה, שיחי פירות יער, קקטוסים, וסווילים בהם עשבי תיבול וצמחי נוי, המונעים סחף ומזינים את מי התהום .
עמק תחתון: חלקה מישורית ופורייה, רוויה במים (מי תהום הקרובים לפני הקרקע). אדמה שנשארת ירוקה גם בקיץ ובה באר, עצי זית, אלון שעם, דובדבן, תאנה, חבוש, מדרוניו ושזיף.
השטח המגודר כולל שני שערים לנגישות קלה. מעבר לגדר יש תוספת של 0.65 הקטאר עם חורשת אורנים, עצי אלון שעם ונטיעות צעירות — תאנים, שקדים, דובדבנים וערמונים.
האדמה עשירה במיוחד במינרלים ומעודדת צמיחה מהירה וחזקה — כל מה שנשתל בה משגשג. חשיפה מצוינת לשמש מאפשרת נטיעות נוספות.
אוהבי ציפורים ימצאו כאן מגוון עצום ושקט, שמעצים את שירתן .
מים והשקיה:
בריכות מים אפורים: מים אפורים מהמקלחת וממכונת הכביסה בבית מוזרמים לשלוש בריכות טבעיות עם צמחי מים ונוי.
מכלי מים גשמים: שני מכלי אגירת מי גשמים (1,000 ליטר כל אחד).
מערכת השקיה: שתי מערכות השקיה ממוחשבות הכוללות את הגן שמסביב לבית, ערוגות הירקות, סווילים (בתוך השטח המגודר), עצי פרי ועוד.
ברזים חיצוניים: שני ברזים עם צינורות ארוכים להשקיה.
המערכת מאפשרת נוחות בניהול משק המים לאורך כל השנה .
הבית והסטודיו
מגורים נוחים ועצמאיים תחת קורת גג אחת
שתי יחידות המגורים עצמאיות לחלוטין, עם כניסות נפרדות, חימום ותשתיות משלהן ומחוברות לרשת החשמל.
הבית
קומת קרקע: מבואה, מטבח מאובזר (מקרר, מדיח, תנור, כיריים וקולט אדים), Rocket Stove, שירותים ומקלחת עם חימום תת־רצפתי ומתקן לייבוש מגבות, חדר שינה עם מאוורר תקרה, סלון עם מאוורר תקרה, ומרחב רב־תכליתי נוסף (חדר עבודה/ חדר טלוויזיה/ חדר קריאה וכו‘).
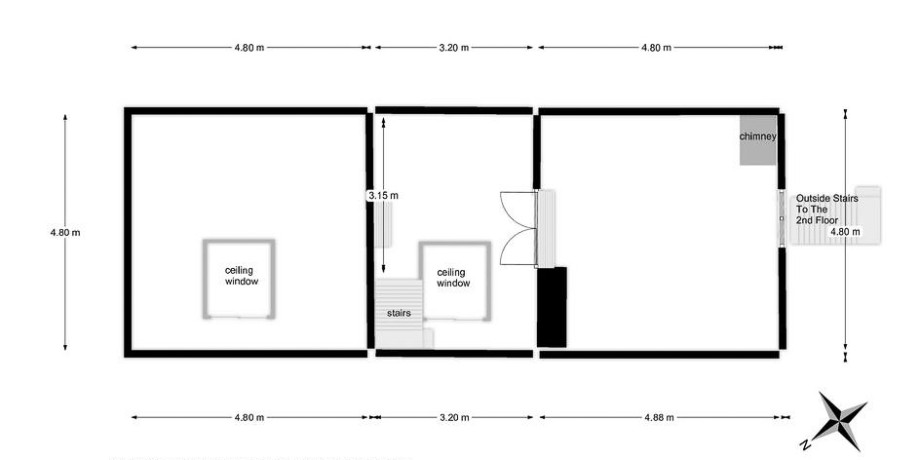
קומה שנייה: מבואה, חדר נוסף ושטח אחסון רחב ידיים (לופט).
חלונות: זכוכית כפולה עם רשתות יתושים .
חימום: תנור Pellets מסוג Palazzetti, המחמם את כל קומת הקרקע, עם פתח חום לחדר השינה ועוד פתח מוכן לניתוב לקומה השנייה.
בידוד: קירות גרניט עבים השומרים על טמפרטורה ולחיסכון באנרגיה.
הסטודיו כיחידה נפרדת
חלל פתוח ומואר, הכולל סלון, אזור שינה (עם מאוורר תקרה), מטבחון ושירותים עם מקלחת (עם תנור חימום ומתקן לייבוש מגבות) .
חלונות עם זכוכית כפולה ורשתות יתושים.
מזגן קיר לחימום/קירור.
ארובה מוכנה להתקנת תנור עץ, או Pellets .
בידוד מיטבי של קיר לבנים כפול ולוחות בידוד ביניהם.
בחודשי הקיץ הבית והסטודיו מוצלים על ידי תאנים, גפנים, קיווי ויסמין, היוצרים קירור טבעי.
שתי היחידות מוכנות למגורים — שילוב של קסם כפרי ונוחות מודרנית .
המוסך והמרחבים החיצוניים
מוסך של 50 מ"ר עם דלת חשמלית — מתאים גם כסדנת עבודה.
מיכל לחץ מים של 60 ליטר.
פרגולה מקורה בקדמת המוסך בגודל של 9.5 מ"ר לעבודה מוגנת מגשם.
תאורה חיצונית לכל המבנים.
כיור חיצוני עם מים חמים ליד הסטודיו.
פרגולה מקורה של 20 מ"ר בכניסה הראשית של הבית להגנה מגשם ועם רשת צל, שניתן לפתוח להגנה משמש בקיץ.
תשתיות:
מקורות מים: קידוח בעומק 80 מטר ובאר בעומק 4.5 מטר וקוטר 3 מטר — שניהם עם משאבות ומחוברים למבנים.
חשמל: חיבור חד-פאזי (30 אמפר) עם שלוש לוחות הפצה נפרדים לבית, לסטודיו ולמוסך.
מים חמים: שני דודי חשמל (100 ליטר כל אחד) — לבית ולסטודיו.
מערכת ביוב: מיכל ספטי .
חשיפה מעולה לשמש — מתאימה להתקנת פאנלים סולאריים.
קליטה טובה של אינטרנט (אינטרנט סיבי צפוי בקרוב היישוב הסמוך כבר חובר).
כל המערכות תקינות ומתוחזקות היטב.
קהילה:
אזור עם קהילה בינלאומית הולכת וגדלה, השכנים עם מודעות סביבתית גבוהה, דוברים אנגלית, גרמנית, פורטוגזית והולנדית.
הסביבה:
אגם מלאכותי סמוך – מושלם לטיולים, או לפיקניקים, שופע בחורף ובאביב, עם לוטרות, אנפות ובעלי חיים נוספים .
כ-25 דקות נסיעה נמצאת Fundão ובה תחנת רכבת, אוטובוסים, שוק, סופרמרקטים, שירותים רפואיים, גישה מהירה לכביש A23 ולרכס ה- Gardunha. * כ-50 דקות נסיעה נמצאת Castelo Branco בה יש קולנוע ותאטרון וגישה מהירה לכביש A23.
כ-20 דקות נסיעה נמצאת Penamacor.
כ-40 דקות נסיעה נמצאת Covilhã בה יש עיר עתיקה יפה, אמנות רחוב, אוניברסיטה ובתי חולים. * כשעה ו-10 דקות נסיעה נמצא רכס ההרים Serra da Estrela פארק לאומי ובו מסלולי הליכה, ספורט חורף (שלג), אגמים ונהרות.
כ-3 שעות נסיעה נמצאת פורטו.
כ-3 שעות נסיעה נמצא נמל התעופה בליסבון.
כ-4 שעות נסיעה נמצאת מדריד.